Sanctuary Village’s Latest Opportunity: Homesite 47
Welcome to the latest opportunity in Sanctuary Village – Homesite 47, a pristine and ideally located lot ready for your dream home. Nestled in the heart of our esteemed mountain community, Homesite 47 offers an unparalleled chance to join a thriving neighborhood.
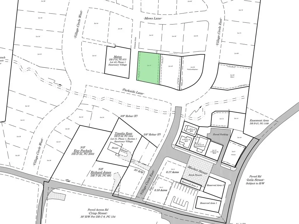
Prime Location on Parkside Lane
Positioned elegantly along Parkside Lane, this homesite boasts a 70′ frontage that combines accessibility with scenic beauty that extends back 88′. The location along this charming lane offers a perfect blend of community feel and private living, ideal for those seeking a balance of tranquility and connectivity. This homesite also offers a view over the community greenspace and creek.

Unique Features
What sets this homesite apart is its thoughtful positioning next to a beautifully maintained common area. This space to the left of the homesite is residents can enjoy leisurely strolls in the afternoon and a sense of extended community space. Additionally, the rear of the property features a convenient access alleyway, ensuring easy entry and a touch of exclusivity to this already desirable lot.





Explore Other Available Homesites
For those interested in exploring more options, Sanctuary Village has several other homesites, each with its own unique charm and advantages. Browse our other properties to find the perfect fit for your needs and preferences.
Schedule Your Tour of Our Available Homesites
Our homesites are not just pieces of land; they are the foundation for future homes and a lifetime of memories. To truly appreciate the potential of this exceptional lot, we invite you to view its listing and schedule a tour. Experience firsthand the beauty of Parkside Lane, the serene surroundings, and the welcoming community vibe of Sanctuary Village. Contact us today to arrange your visit and take the first step in becoming a part of our community.